
【產品用途】
盲板閥又稱眼鏡閥、翻板閥、扇形閥,廣泛應用于工礦企業、市政、環保等行業的氣體介質管理系統中,尤其適用于有害、有毒、易燃氣體的絕對切斷。亦適宜做管道終端的盲板,以縮短檢修時間或方便連接新的管路。
【產品結構及特點】
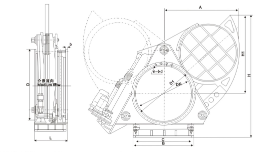
液動扇形盲板閥主要由左閥體、右閥體、絲桿副、翻板、密封圈、杠桿、液壓油缸等零件組成,并由底座、支撐柱構成一個剛性結構體。閥門中設有夾緊油缸和翻板油缸,夾緊油缸通過杠桿副和絲杠螺旋副驅動左、右閥體完成松開、夾緊動作,翻板油缸驅動翻板完成開關動作。橡膠密封圈鑲嵌在翻板上,具有耐高溫、密封性能好、更換方便、使用壽命長等特點。
【產品主要參數】
公稱壓力MPa 0.25 0.15 0.10 0.05
【主要外形和連接尺寸】
DN
D
D1
b
n-φd
L
300
440
395
18
12-φ22
500
350
490
445
18
12-φ22
600
400
540
495
24
16-φ22
600
450
595
550
24
16-φ22
600
500
645
600
26
20-φ22
600
600
755
705
26
20-φ26
600
700
860
810
26
24-φ26
600
800
975
920
35
24-φ30
800
900
1075
1020
35
24-φ30
800
1000
1175
1120
35
28-φ30
800
1100
1275
1220
35
36-φ30
800
1200
1375
1320
35
32-φ30
800
1300
1475
1420
35
36-φ30
800
1400
1575
1520
35
36-φ30
800
1500
1675
1620
35
36-φ30
850
1600
1790
1730
35
40-φ30
850
1800
1990
1930
35
44-φ30
1100
【產品結構】
密封試驗壓力MPa 0.275 0.165 0.11 0.055
強度試驗壓力MPa 0.40 0.225 0.15 0.075
適用溫度℃ 丁腈橡膠 硅橡膠 氟橡膠 <120 <250 <300
